دانلود Tekla Structures 2025 Structural Steel Model and Details آموزش تکلا استراکچرز
- 1,172


دانلود آموزش تکلا استراکچرز ۲۰۲۵ مدل و جزئیات فولاد سازهای
این برنامه آموزشی با هدف بهرهبرداری حداکثری از پتانسیلهای نرمافزار Tekla Structures طراحی شده و بهطور اختصاصی بر پروژههای ساختمانی اسکلت فلزی تمرکز دارد. شرکتکنندگان در این دوره با مهارتهای ضروری و دانش فنی لازم برای استفاده بهینه از این نرمافزار قدرتمند آشنا میشوند تا بتوانند مدلها و نقشههای بسیار دقیق و با جزئیات کامل را ترسیم کنند. مسیر یادگیری در این دوره از پایهایترین مباحث آغاز میشود. کاربران ابتدا بر نحوه ایجاد شبکهبندی (Grid) و مدیریت نماها (Views) مسلط میشوند که سنگ بنای یک مدلسازی دقیق و اصولی است. پس از استقرار زیرساختهای اولیه، آموزش وارد فاز مدلسازی سهبعدی میشود؛ جایی که دانشجو یاد میگیرد چگونه بخشهای مختلف اسکلت یک ساختمان را با دقت بالا و به شکلی کارآمد طراحی و پیادهسازی نماید.
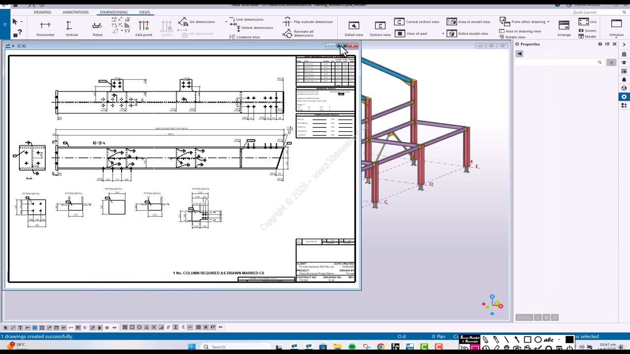
در ادامه، این دوره به بررسی جزئیات پیشرفتهتر در سازههای فولادی میپردازد. هنرجویان با ابزارهای خودکار و دستی تکلا برای جایگذاری ستونها، تیرها و مهاربندها آشنا شده و استانداردهای مهندسی در ترسیم اتصالات را فرا میگیرند. تمرکز اصلی بر این است که خروجی نهایی مدل، بدون خطا و کاملاً منطبق بر واقعیتهای اجرایی در کارگاههای ساخت باشد. علاوه بر جنبههای مدلسازی، نحوه استخراج نقشههای شاپ دراوینگ، لیستوفر قطعات و گزارشهای متریال نیز به تفصیل آموزش داده میشود تا فرد برای ورود به بازار کار حرفهای آمادگی کامل کسب کند. این رویکرد جامع باعث میشود تا خطاها در مرحله ساخت به حداقل رسیده و سرعت اجرای پروژه به شکل چشمگیری افزایش یابد. در نهایت، با اتمام این دوره، شرکتکننده قادر خواهد بود مدیریت کامل یک پروژه فولادی را از مرحله خام تا تهیه نقشههای اجرایی در محیط تکلا بر عهده بگیرد.
در دوره آموزشی Tekla Structures 2025 Structural Steel Model and Details با مدلسازی سهبعدی و جزئیات اجرایی سازههای فلزی آشنا خواهید شد.
فهرست مطالب دوره Tekla Structures 2025 Structural Steel Model and Details:
- مقدمه
- مدلسازی سهبعدی
- جزئیات و اتصالات
- اتصالات تعریف شده توسط کاربر
- تکمیل مدل اسکلت فلزی
- ایجاد نقشههای نصب
- نقشه قطعات اسمبلی (Assembly)
- نقشه تکقطعه (Single Part)
- گزارشها
کلمات کلیدی: Tekla Structures 2025 Structural Steel Model and Details, آموزش Tekla Structures 2025 Structural Stee,
Udemy full tutorial collection,
عیثپغ, عیثئغ, Download Tekla Structures 2025 Structural Steel Model and Details,
Tutorial,
E-Learning,
Training Course,
Education,
مهندسی, گرافیک و طراحی,
Instruction,
CBT,
Teacher,
Direct Download Link,
DDL,
New,
Update,
Online,
Buy,
Usnet,
Torrent,
P30Download,
Danlod,
Danload,
Donload,
nhkg,n hl,ca,
فثنمش سفقعزفعقثس 2025 سفقعزفعقشم سفثثم پخیثم شدی یثفشهمس, فثنمش سفقعزفعقثس 2025 سفقعزفعقشم سفثثم ئخیثم شدی یثفشهمس, 3D Modelling of Structural Steel Building
,
دانلود آموزش های شرکت یودمی,
d,nld, d,nld, دانلود آموزش آموزش تکلا استراکچرز ۲۰۲۵ مدل و جزئیات فولاد سازهای,
اموزش آنلاین,
مجازی,
فیلم آموزشی,
مبتنی بر کامپیوتر,
یادگیری,
ویدئو,
دوره آموزشی,
3D Steel Design, BIM Software, CAD Software, Construction Modeling, Shop Drawings, Steel Connections, Steel Detailing, Steel Fabrication, Steel Modeling, Structural Engineering, Structural Steel, Tekla Structures 2025, Tekla Structures 2025 Training, Tekla Tutorial, Udemy, مهندسی سازه, مدلسازی فولادی, مدلسازی اطلاعات ساختمان, نقشههای کارگاهی, نرمافزار تکلا, یودمی, آموزش مدلسازی, آموزش گامبهگام تکلا, آموزش تکلا استراکچرز, آموزش طراحی سازه, اتصالات فولادی, تکلا استراکچرز ۲۰۲۵, جزئیات فولادی, جزئیاتاجرایی, سازههای فولادی, شاپ دراوینگ,
راهنمای تصویری,
استاد,
مدرس,
معلم,
تدریس خصوصی,
Engineering, Graphic & Design,
رایگان,
خرید,
پی سی,
پی 30,
با لینک مستقیم,
اپدیت,
در دوره آموزشی Tekla Structures 2025 Structural Steel Model and Details با مدلسازی سهبعدی و جزئیات اجرایی سازههای فلزی آشنا خواهید شد.,
ترافیک نیم بها,
ای لرنینگ,
فایل آموزش,
از راه دور,
مجانی,
داونلود,
دانلد,
تورنت,
یوزنت,
تحميل,
ڈاؤن لوڈ,
دریافت,
فعفخقهشم مثشقدهدل فقشهدهدل,
hl,ca j:gh hsjvh:]vc ۲۰۲۵ lng , [cmdhj t,ghn shcihd, hl,ca j:gh hsjvh:]vc ۲۰۲۵ lng , [cئdhj t,ghn shcihd,دانلود Tekla Structures 2025 Structural Steel Model and Details - آموزش تکلا استراکچرز,
2026-02-07
21:51:31
| 🎓 نام آموزش | Tekla Structures 2025 Structural Steel Model and Details |
| 📁 دسته بندی | مهندسی |
| 💾 حجم فایل | 1878 مگابایت |
| 📅 تاریخ به روزرسانی | 1404/11/18 |
| 📊 تعداد دانلود | 1,171 |
| ❤️ هزینه دانلود | رایگان و نیم بها |
Tekla Structures 2025 Structural Steel Model and Details Download
Unlock the full potential of Tekla Structures with our comprehensive training program tailored for structural steel building projects. This course is designed to equip participants with the essential skills and knowledge to efficiently utilize Tekla Structures for creating detailed and accurate models and drawings.Begin your journey by mastering grid and views creation, setting the foundation for precise modeling. Progress into 3D modeling, where you'll learn to design the structural parts of a building with precision and ease.
مشخصات آموزش Tekla Structures 2025 Structural Steel Model and Details
شرکت سازنده: یودمی / Udemy
![]()
نام انگلیسی: Tekla Structures 2025 Structural Steel Model and Details
نام فارسی: آموزش تکلا استراکچرز ۲۰۲۵ مدل و جزئیات فولاد سازهای
زبان آموزش: انگلیسی
زیرنویس: ندارد
مدرس:
Art Robin
سطح آموزشی: مقدماتی, متوسطه
زمان آموزش: 3 ساعت + 29 دقیقه
حجم فایل: 1878 مگابایت
تاریخ انتشار: 21:51 - 1404/11/18 | 2026.02.07
منبع: پی سی دانلود / www.p30download.ir